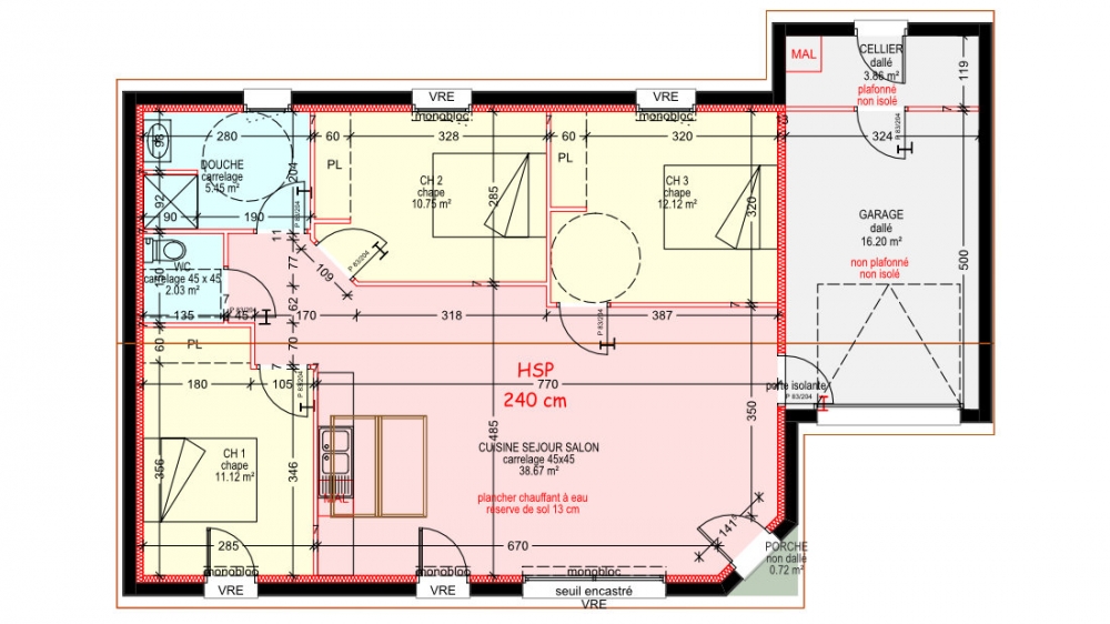
Maisons plain pied 3 chambres de 80 m² construite par Maisons pour tous


Pour toute demande d'informations, l'agence est disponible au 04 77 67 91 72

Maisons plain pied 3 chambres

Maison de plain pied avec 3 chambres, une cuisine ouverte sur un séjour, un cellier, un garage et un porche.

80 m² - Réf. : MS151

Dermander + d'informations.